Домокомплект DoorHan 29

Стоимость от
1 398 123 ₽
Без монтажа
Подробнее
2 179 479 ₽
С монтажом
Подробнее
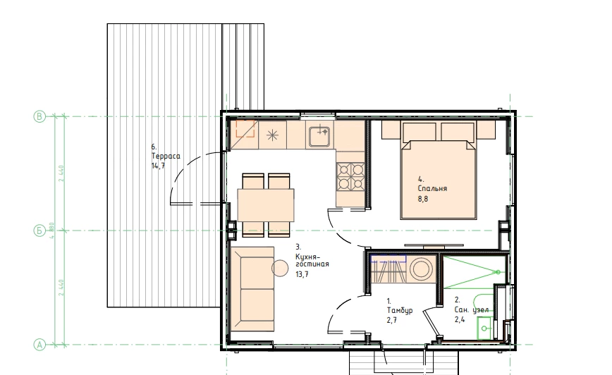
29 м²
4,880 × 6,055 м
1 этаж
1 спальня
1 кухня-гостиная
1 санузел
Запросить смету
Получить консультацию

Домокомплект DoorHan 29 под ключ - описание

Модель серии DoorHan Ультра 29 — это одноэтажный дом общей площадью 29 кв. м, выполненный в современном дизайне. Планировка и площади внутренних помещений позволяют разместить небольшую спальню, достаточно просторную гостиную, совмещенную с кухней, санузел и холл. Установка высоких окон позволяет обеспечить хорошее естественное освещение комнат и визуально увеличить пространство.
Этот компактный и экономичный вариант отлично подойдет для одного хозяина или маленькой семьи. Домокомплект серии DoorHan Ультра 29 можно использовать как постоянное жилище, в качестве арендного жилья, а также как гостевой домик или дачный.

Домокомплект DoorHan 29 - конструкция

Все о технологии DoorHan

Новая для России технология индивидуального жилого строительства.

Основные принципы технологии домостроения DoorHan:

  • стальной каркас выдерживает большие нагрузки
  • низкие затраты на обогрев - дома очень теплые
  • возведение дома за 7 дней. Можно въезжать без отделки
  • заводское качество. Исключена вероятность некачественной сборки
Домокомплект DoorHan 29 - документация
  • Инструкции и паспорта
  • Дизайн и отделка дома
Все инструкции и паспорта в одном месте для вашего удобства.
Бесплатный дизайн-проект, разработанный нашими архитекторами, в котором собраны все готовые планировочные решения и спецификации по проведению отделочных работ.

Видео

Статьи по теме

Заказать звонок
Я даю согласие на обработку моих персональных данных в целях обработки заявки и обратной связи.
Нажимая на кнопку, вы соглашаетесь на обработку персональных данных и политики конфиденциальности .

Выберите проект по душе!

Другие проекты

Быстровозводимый дом DoorHan 148-2
Быстровозводимые дома серии DoorHan Ультра
Новинка
Цена 4 626 672 ₽
Общая площадь 148 м²
Габаритные размеры внутри 12,505 × 6,345 м
Этажность здания 2 этажа
Количество модулей 10 модулей
Заказать расчет стоимости
Домокомплект DoorHan 29
Быстровозводимые дома серии DoorHan Ультра
Цена 1 398 123 ₽
Общая площадь 29 м²
Габаритные размеры внутри 4,880 × 6,055 м
Этажность здания 1 этаж
Количество модулей 2 модуля
Заказать расчет стоимости
Домокомплект DoorHan 44
Быстровозводимые дома серии DoorHan Ультра
Цена 1 872 319 ₽
Общая площадь 44 м²
Габаритные размеры внутри 7,325 × 6,055 м
Этажность здания 1 этаж
Количество модулей 3 модуля
Заказать расчет стоимости
Домокомплект DoorHan 118-2
Быстровозводимые дома серии DoorHan Ультра
Новинка
Цена 3 902 901 ₽
Общая площадь 118 м²
Габаритные размеры внутри 10,060 × 6,345 м
Этажность здания 2 этажа
Количество модулей 8 модулей
Заказать расчет стоимости
отзывы клиентов
Игорь М.
28.10.2021
Отличное соотношение цена-качество! Купили домокомплект серии DoorHan Ультра 29 под ключ и не пожалели. Все продумано до мелочей, а сборка заняла минимум времени. Теперь у нас уютный и функциональный дом
Анна С.
28.10.2021
Решили купить дом под ключ, и домокомплект серии DoorHan Ультра 29 оказался идеальным выбором. Цена полностью оправдана качеством. Процесс от заказа до заселения занял всего месяц. Рекомендую всем, кто ищет компактное и современное жилье!
Связаться с нами
Я даю согласие на обработку моих персональных данных в целях обработки заявки и обратной связи.
Нажимая на кнопку, вы соглашаетесь на обработку персональных данных и политики конфиденциальности .